Kaiwharawhaura

powered by Open2view.com
SOLD

Wellington
2
2
N/A
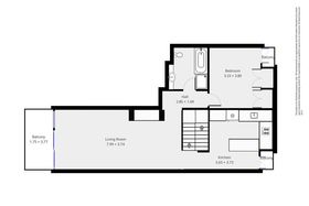
107sqm
N/Asqm
Wellington
proudly marketed by
Team Wellington Ltd MREINZ
<b>New Lifestyle "Sanctum"</b>
Fashionable, unique and quite sought after! This north-facing apartment is situated in the convenient, Te Aro precinct and surrounded with beautiful lush green maintained gardens. Features include: - Living room that flows from front to rear - Two double bedrooms, two full bathrooms (with a bath) - Set over two levels, great for privacy within bedrooms - Separate laundry - Single secure carpark plus storage locker - Enjoy the bonus of a swimming pool, sauna, spa, gym and a game of tennis - Perfect for executives, professional, singles or couples wishing to enjoy a change in lifestyle
Question
Please leave this field blank:
Upload by David Garratt
Wellington Central/North